Woonhuis Gorssel

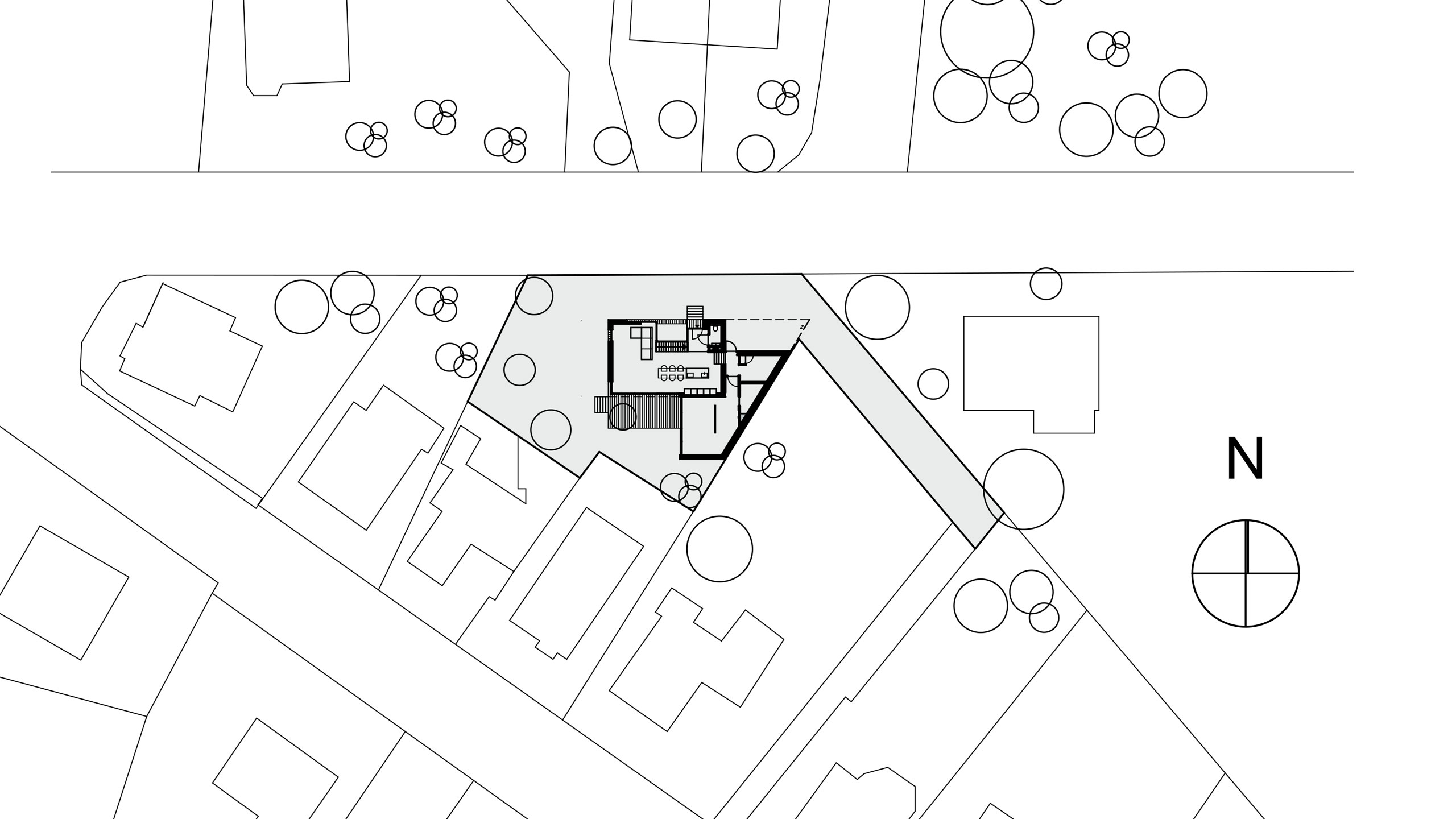
Via inbreiding is deze kavel in Gorssel ontstaan. De kavel is aan de straat gesitueerd en is omsloten door huizen. Door de vorm van de kavel en het kleine volume dat gebouwd mag worden is er gekozen om een deel van de woning in de kelder te plaatsen. Via een patio in de kelder worden deze ruimten ook voorzien van daglicht en ventilatie. In de kelder zijn de werkkamers en een badkamer ontworpen. De trap vanuit de kelder begeleid je naar de begane grond. Op de begane grond zijn de keuken, eethoek en zithoek gesitueerd. Dit deel ligt 940 mm boven maaiveld. Vanuit de keuken is er een loopt route naar de bijkeuken, slaapkamer en badkamer.

De gehele woning is in houtskeletbouw opgebouwd. Hierbij is gekozen voor het damp-open systeem met cellulose als isolatie. De gevelafwerking voor de buitengevel bestaand uit lariks houten delen. Het platte dak is afgewerkt via een groen dak waardoor het zich voegt in zijn natuurlijke omgeving.