Woonboerderij te Harfsen

In het buitengebied van Harfsen ligt deze prachtige verbouwde woonboerderij. De buitenkant is zoveel mogelijk in de bestaande toestand hersteld. Wel hebben er in de gevel en het dak twee moderne ingrepen plaats gevonden. De eerste is een glazen lichtstraat in het dak waardoor er tot diep in de woonboerderij licht naar binnen straalt. De tweede ingreep zijn de twee stalen kaders van Corten staal ter plaatse van de voor- en achtergevel.

WH6
WH5
WH3
WH2
WH17

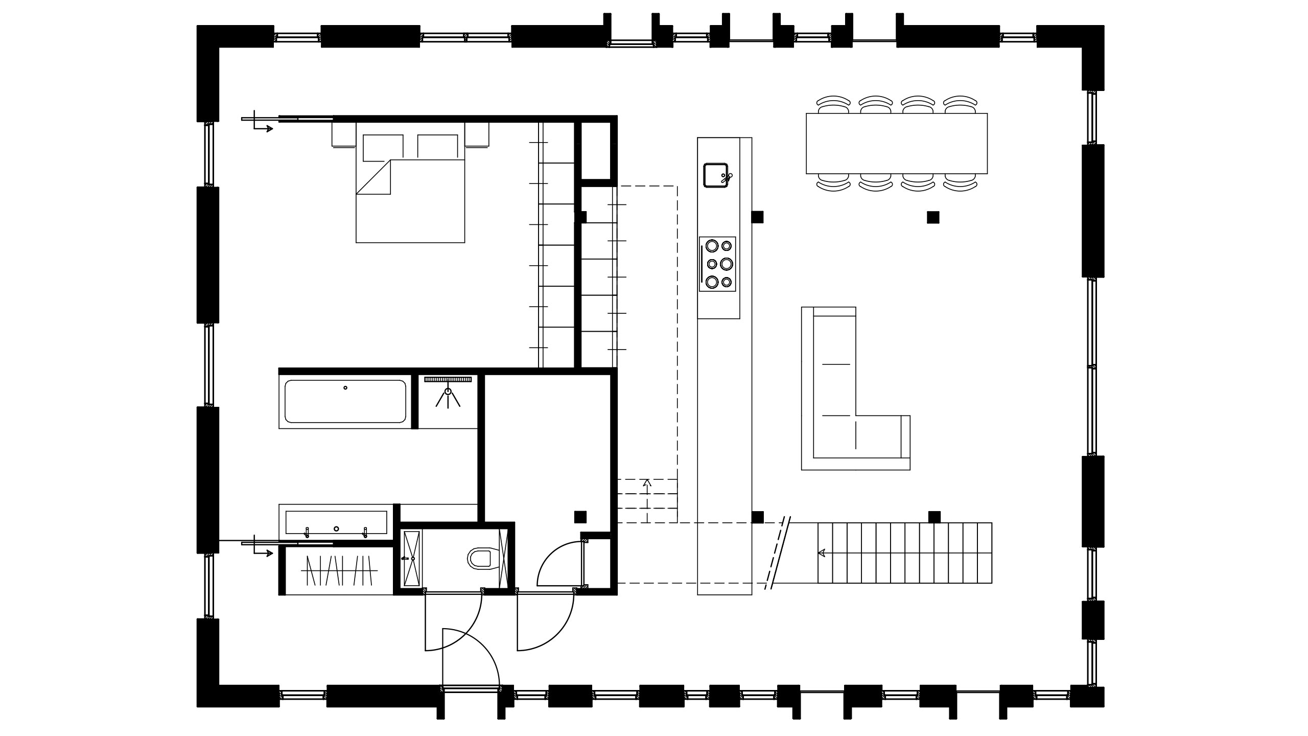
De binnenzijde van de woonboerderij is in zijn geheel gestript en opnieuw van de nodige isolatie voorzien. Het ontwerp voor het interieur in de woonboerderij bestaat uit het plaatsen van een huis in de open ruimte. In en aan dit huis zijn alle functies gekoppeld, namelijk, de keuken, de eettafel, de slaapkamer, de badkamer, de bijkeuken, het toilet en de slaapkamer. De verdieping in het geplaatste huis wordt gevormd door een slaapkamer en een badkamer. De verdieping kan worden bereikt via een brute stalen trap die via de zitkamer bereikbaar is.