Barbapapa Naarden

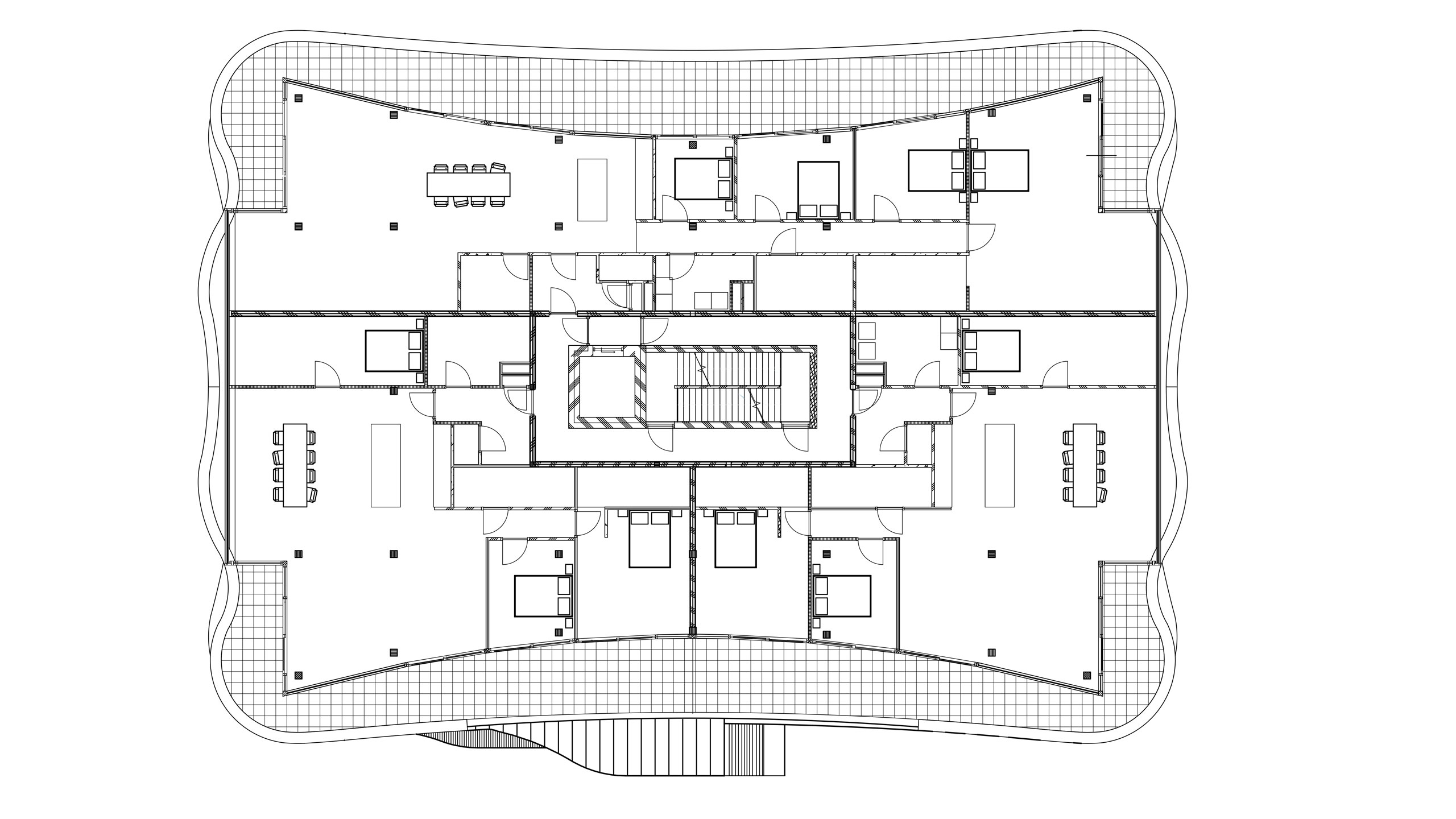
De kavel is een oude zandafgraving uit de jaren 30. Het heeft een eigen toegangsweg. Het maaiveld van de kavel ligt 8 meter lager dan het maaiveld van de Driftweg. De kavel is in zijn geheel omringd door grote hoge bomen. Het gebouw wordt geplaatst op het maaiveld van de afgegraven kuil waar omheen een natuurlijke bosachtige omgeving in de tijd is ontstaan. De kuil wordt gezien als een tuinkamer waarin het gebouw wordt opgenomen. Het is privé gebied, niet openbaar en besloten. Door het gebouw bij de begane grond tot 6,5 meter omhoog te laten lopen en naar boven toe via het zadeldak van glas en koper te verkleinen, ontstaat er ook bij deze beweging naar boven toe ruimte. En voegt het zich op deze manier in zijn omgeving.

Het ontwerp heeft een sterke horizontale structuur gekregen. Ook in het dakvlak worden deze structuren doorgezet. Verder zijn de uitkragende balkons zijn in de horizontale structuur doorgezet. Door het terugleggen van de terrassen in de voorgevel en achtergevel wordt er gelaagdheid gecreëerd. De architectonische uitstraling van het appartementencomplex is terughoudend in kleur, materiaal en vormgeving. De terughoudendheid in materiaal en kleur keuze wordt versterkt door voor 3 materialen te kiezen, namelijk koper, Accoya hout en glas.

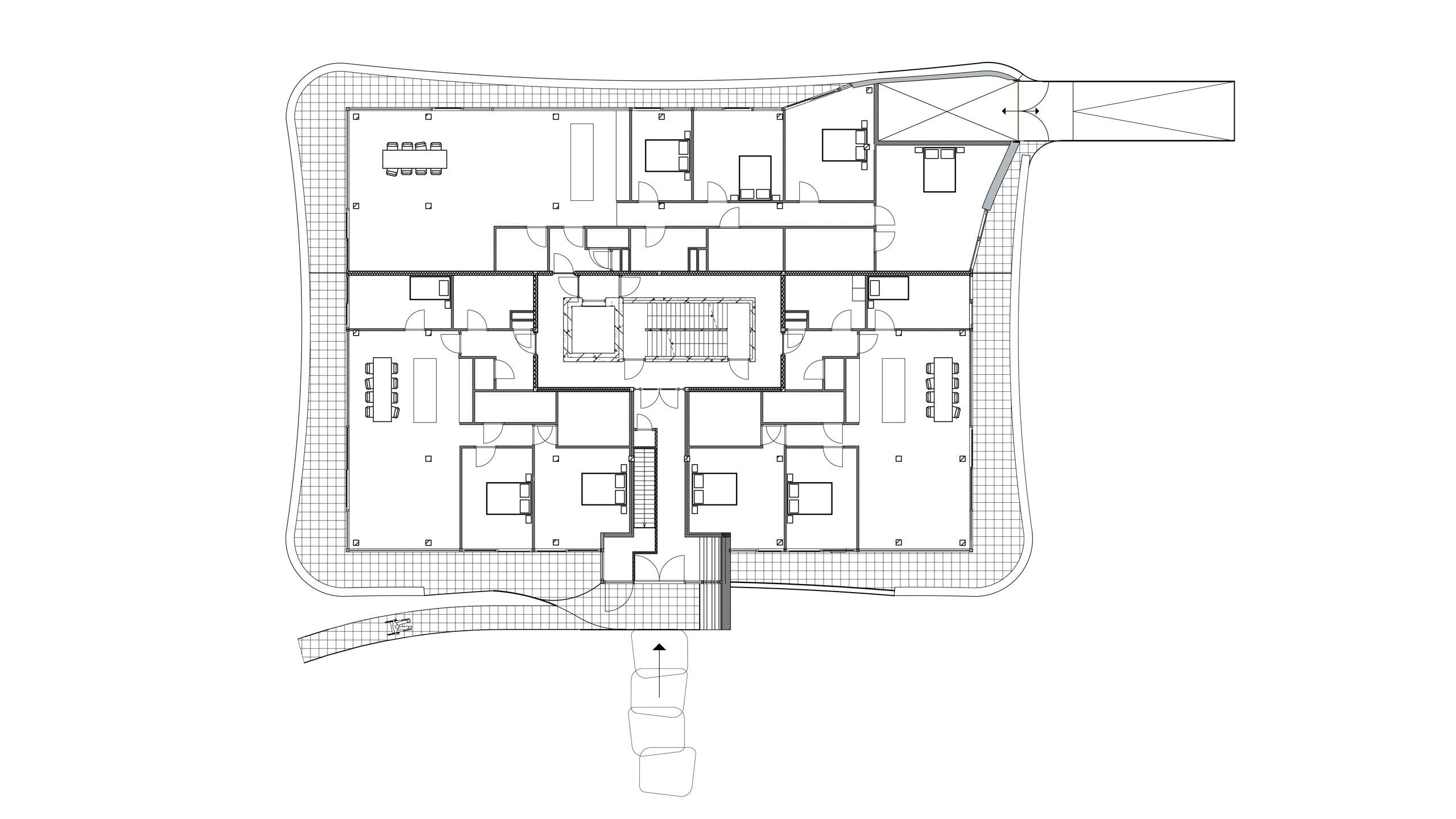
De toegang ligt op de as van het gebouw. De toegangsdeuren hebben een accent gekregen in de gevel en loop over twee verdiepingen door. Deze deuren zijn bekleed met koper bruin. Aan de rechterzijde is de toegang naar de autolift dit uitkomt in de kelder.